Rehabilitation of King Ghazi Hotel in downtown Amman to host the exhibition ‘Out to Sea’ by Zurich Design Museum, funded by Drosos Foundation.
——————
In late 2013 I was approached by Drosos Foundation to implement, design and manage the Zurich Design Museum international educational exhibition ‘Out to Sea’ in Jordan, for the young Amman audience.
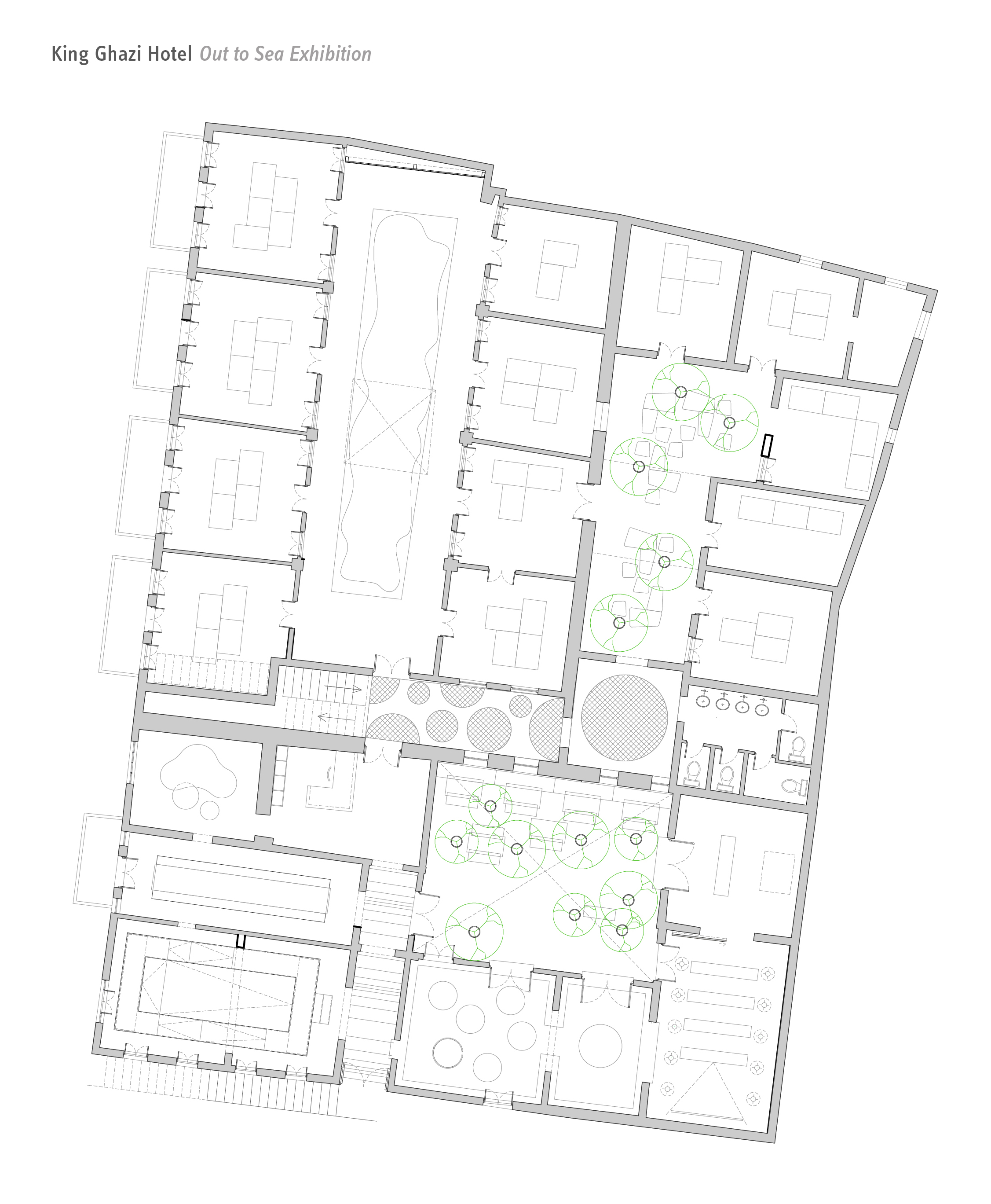
The exhibition aimed to educate its visitors about the dangers of plastic on the sea and the marine environment, however I had one problem: we had no sea in Amman! In Jordan we have 27 km of coastline in Aqaba south on the borderline of Jordan, only 7 km of which are open to the public. Most of the general public, especially the children of Amman, have never experienced sea. So, in implementing this exhibition, my aim shifted to creating fun yet educational play-zones for children to communicate the experiencing the sea: the pirates ship like room for workshops; underwater submarine screening hall; sandy beach room; etc. So in that sense the exhibition was divided into two, the principal Zurich Museum designed display boxes, and the added educational play-zones that I designed.
Location, location, location! It was integral for me to reach low to middle class public schools children of East Amman in addition to the more fortunate West Amman children, therefore a location in the city centre of Amman was important. With the budget provided and the tight timeline, building a temporary structure on the outskirts or renting a space wasn’t an option. At that time, I found the deteriorating building of King Ghazi Hotel in Faisal Street in downtown, the first hotel ever built in Amman. It was partly occupied by a group of artists for a while in the year before, however it was in a dangerously critical state. So, I cut a deal with the owner to rehabilitate the building instead of paying rent, therefore the venue money would be invested in a sustainable manner. There, I found myself rehabilitating an old building in downtown which I had no experience in doing; as well designing and implementing the swiss ‘Out to Sea’ exhibition.

King Ghazi Hotel Selected Drawings;
